一、概述
DRB-L系列電動潤滑泵適用于潤滑點多,分布范圍廣,給油頻率高的雙線式干油集中潤滑系統。通過雙線分配器 向潤滑部位供送潤滑脂,可滿足各種機器設備的需要,對于大型機組和生產線尤為適宜。
該系列電動潤滑泵可組成雙線環式集中潤滑系統,即系統的主管路組成環狀布置,由返回潤滑泵的主管道末端的 系統壓力來控制液壓換向閥,使兩條主管道交替地供送潤滑脂的集中潤滑系統;見外形圖和外形尺寸表的規定。也可 組成雙線終端式集中潤滑系統,即由主管道末端的壓力操縱閥來控制電磁換向閥交替地使兩條主管道供送潤滑脂的集 中潤滑系統,也見外形圖和外形尺寸的規定。
該系列電動潤滑泵采用雙柱塞機構,運轉可靠,減速機構置于泵體內,結構緊湊,體積小,配以相應的電控箱可以實現自動控制。
二、技術參數
型號 |
工程壓力
MPa |
公稱流量
mL/min |
貯油器
容積L |
配管
方式 |
電機
型號 |
電動機
功率KW |
減速比 |
轉速
r/min |
減速器潤
滑油量L |
重量
Kg |
標準型號 |
引進型號 |
DRB-L60Z-H |
U-25AL |
20 |
60 |
20 |
環式 |
A02-7124 |
0.37 |
1:15 |
100 |
1 |
140 |
DRB-L60Z-Z |
U-25AE |
終端式 |
160 |
DBR-L195Z-H |
U-4AL |
195 |
35 |
環式 |
Y802-4 |
0.75 |
1:20 |
75 |
2 |
210 |
DRB-L195Z-Z |
U-4AE |
終端式 |
230 |
DRB-L585Z-H |
U-5AL |
585 |
90 |
環式 |
Y90L-4 |
1.5 |
5 |
456 |
DRB-L585Z-Z |
U-5AE |
終端式 |
416 |
使用介質為錐入度不低于265(25℃,150g)1/10mm的潤滑脂(NLG10#~2#)。
三、型號說明

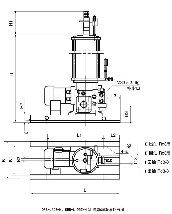
四、外形尺寸




型 號
|
L
|
B
|
H
|
L
|
L
|
L
|
B
|
B
|
H
|
H
|
H
|
H
|
d
|
DRB-L60Z-H
|
640
|
360
|
986
|
500
|
60
|
126
|
320
|
23
|
598
|
155
|
60
|
130
|
14
|
DRB-L60Z-Z
|
780
|
360
|
986
|
500
|
60
|
640
|
320
|
23
|
598
|
155
|
60
|
85
|
14
|
DRB-L195Z-H
|
800
|
452
|
1056
|
600
|
100
|
125
|
420
|
39
|
687
|
167
|
83
|
164
|
18
|
DRB-L195Z-Z
|
891
|
452
|
1056
|
600
|
100
|
800
|
420
|
39
|
687
|
167
|
83
|
108
|
18
|
五、原理圖

六、接線指示

七、工作原理
該系列電動潤滑泵由柱塞泵、貯油器、換向閥、電動機等部分組成。柱塞泵在電動機的驅動下,從貯油器吸入潤滑脂,壓送到換向閥,通過換向閥交替地沿兩個出油口輸送出去,當一個出油口壓送潤滑脂時,另一出油口與貯油器 接通卸荷。
環式結構電動潤滑泵配用液壓換向閥,有四個接口,外接兩根供油主管分別由兩根供油管引回的回油管,依靠回油管內油脂的油壓推動換向閥換向。
終端式結構電動潤滑泵配用電磁換向閥,有二個接口,外接二根供油主管,依靠電磁鐵的得失電實現換向供油。 柱塞泵換向閥的動作原理詳見使用說明書。
八、使用說明
1、該系列電動潤滑泵應安裝在環境溫度合適,灰塵少,振動小,便于調整、檢查、維護保養及補脂方便的地方并 且盡可能布置在系統的中心位置,縮短系統配管長度,保持最低壓力降,使泵能產生足以克服潤滑點阻力的壓力。
2、使用前先向柱塞泵的減速腔內加入N220的工業齒輪油至油標規定液面。
3、向貯油器內補脂使用DJB-V70型電動加油泵從潤滑泵的補給口補進,使用的潤滑脂應清潔,不允許夾雜有污物。
4、潤滑泵的回轉方向是單向的,使用時必須按電機上旋向牌規定的旋向接線使用。
5、泵溢流閥的標準設定壓力為23MPa,可以在0?20MPa范圍內任意調節,在使用時不允許超過泵公稱壓力的115% (23MPa)。
6、環式潤滑泵的液壓換向閥的設定壓力按5MPa調定。
7、該系列電動潤滑泵為室內安裝型,在室外或環境惡劣的場合使用時,必須采取防護措施。
九、訂貨須知
1、本系列電動潤滑泵配用以下四種形式標準電控箱,可根據不同控制要求選擇。
1.1DEA-2E型終端式電控箱
1.2DEA-2L型環式電控箱
1.3R1902型環式帶補脂控制電控箱
1.4R1904型終端式帶補脂控制電控箱
2、本系列電動潤滑泵分部件訂購按下表選型
泵 型 號
|
柱塞泵型號
|
換向閥型號
|
溢流閥型號
|
標準型號
|
引進型號
|
標準型號
|
引進型號
|
DRB-L60Z-H
|
U-25AL
|
P-25A
|
YHF-L2
|
RV-4U2
|
JR-G01-3L
|
DRB-L60Z-Z
|
U-25AE
|
DEF-10
|
SV-32
|
DRB-L195Z-H
|
U-4AL
|
P-40A
|
YHF-L2
|
RV-4U2
|
DRB-L195Z-Z
|
U-4AE
|
DEF-10
|
SV-32
|
DRB-L585Z-H
|
U-5AL
|
P-50A
|
YHF-L1
|
RV-3
|
JR-T02-3L
|
DRB-L585Z-Z
|
U-5AE
|
DEF-10
|
SV-32
|
3、用戶如有其它特殊要求可在合同中注明,本廠可為用戶設計制造。 |