一、概述
稀油站是稀油循環系統的心臟,用來將潤滑油液強制地壓送到機器的摩擦部位。在相對運動的機器零件間形成油膜,減少零件的摩擦、磨損,同時對摩擦部位進行沖洗,并帶走摩擦產生的熱量,保證機器正常運轉,延長機器使用壽命。
稀油站由油站、儀表盤和電氣控制箱三部分組成。
它主要適用于冶金、礦山、鍛壓、電力、化工、輕工、水泥、港口等機械設備的稀油循環潤滑系統中,通常安裝在機器附近的地下油庫或地坑中。
稀油站工作介質粘度等級為N22~N320的工業潤滑油,公稱壓力為0.4MPa,過濾精度0.08~0.12mm;冷卻水溫≤28℃;冷卻水壓力0.2~0.3MPa;冷卻器進油溫度為50℃,溫降7~8℃;使用蒸汽加熱時蒸汽壓力為0.2~0.4MPa。
二、技術參數
型 號
|
XYZ
-6※
|
XYZ
-10※
|
XYZ
-16※
|
XYZ
-25※
|
XYZ
-40※
|
XYZ
-63※
|
XYZ
-100※
|
XYZ
-125※
|
XYZ
-250※
|
XYZ
-400※
|
XYZ
-630※
|
XYZ
-1000※
|
供油壓力(MPa)
|
≤0.4
|
公稱流量(L/min)
|
6
|
10
|
16
|
25
|
40
|
63
|
100
|
125
|
250
|
400
|
630
|
1000
|
供油溫度(℃)
|
40±3
|
油箱容積( )
|
0.15
|
0.63
|
1
|
1.6
|
6.3
|
10
|
16
|
25
|
過濾面積( )
|
0.05
|
0.13
|
0.19
|
0.4
|
0.52
|
0.83
|
1.31
|
2.2
|
換熱面積( )
|
0.6
|
3
|
4
|
6
|
24
|
35
|
50
|
80
|
冷卻水耗量( /h)
|
0.36
|
0.6
|
1
|
1.5
|
3.6
|
5.7
|
9
|
11.25
|
12~22.5
|
20~36
|
30~56
|
60~90
|
電加熱器
|
功率(kw)
|
1-2
|
12
|
12
|
24
|
/
|
/
|
/
|
/
|
電壓(V)
|
220
|
蒸汽耗量(kg/h)
|
/
|
/
|
/
|
/
|
100
|
160
|
250
|
400
|
電動機
|
型號
|
A02-8014-B14
|
Y90S-4-V1
|
Y100L1-4-V1
|
Y112M-4-V1
|
Y132S-4
|
Y132M-4
|
Y160L-4
|
Y180L-4
|
功率(kw)
|
0.55
|
1.1
|
2.2
|
4
|
5.5
|
7.5
|
15
|
22
|
轉速(r/min)
|
1400
|
1400
|
1430
|
1440
|
1440
|
1440
|
1460
|
1470
|
重 量(kg)
|
308
|
309
|
628
|
629
|
840
|
842
|
1260
|
1262
|
3980
|
5418
|
8750
|
12096
|
三、型號說明

四、工作原理
工作時,油液由齒輪泵從油箱吸出,經單向閥、雙筒網式油濾器、列管式油冷卻器,被直接送到設備的潤滑點。油站的最高供油壓力為0.4MPa,最低供油壓力為0.1MPa,根據潤滑點的要求,通過調節安全閥確定使用壓力,當油站的工作壓力超過安全閥的調定壓力時,安全閥將自動打開,多余的油液即流回油箱。正常工作時,油泵一臺工作、一臺備用。有時設備耗油量由于某種原因需要增加時,則系統壓力下降,當降到調定值時,通過壓力控制器調節,備用泵自動開啟,與工作泵一起工作,直到壓力正常時,備用泵自動停止。若油壓繼續下降到另一調定值時,則通過另一壓力控制器調節,發出事故警報。
雙筒網片式油濾器的一組過濾濾芯工作,一組過濾濾芯備用,在進出口處接有雙針雙管壓力表,當壓差超過0.05MPa(≥250L/min稀油站為0.05~0.1MPa),人工切換到備用濾芯工作,取出原工作濾芯,清洗或更換濾片。
油箱裝有電接點溫度計,根據供油溫度要求,調定最高和最低兩個界限。在低溫時,信號燈亮,人工開啟加熱器進行加熱,當油溫升至高點時,自動切斷加熱器,停止加熱;供油口溫度高時,報警并開冷卻器。
≥250L/min稀油站,采用蒸汽加熱油箱中的潤滑油,儀表盤尚多一檢測冷卻器進出水管壓差的儀表,其主要部件均另外裝于基礎上;而≤125L/min稀油站的全部部件都裝在油箱上,為整體式結構。
五、結構特點
1)設有備用油泵,可保證向潤滑點連續供油。
2)過濾器放在冷卻器之前,可提高過濾和通過能力;更適合較高粘度的潤滑介質。
3)采用雙筒式過濾器,可不停車進行濾芯的清洗和更換。
4)采用列管式油冷卻器,冷卻效果好,阻力小,便于維修。
5)回油設有磁網過濾,可吸附清除油液中鐵質微粒,保證油液清潔度及提高潤滑部件壽命。
6)配有儀表盤和電控箱,觀察運行參數方便,可實現自動控制和事故報警。
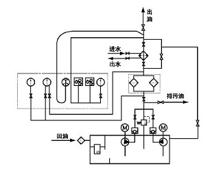
六、原理圖
●XYZ-6G~10G
●XYZ-16~125、XYZ-16G~125G
●XYZ-250~1000、XYZ-250G~1000G、XYZ-250A~1000A
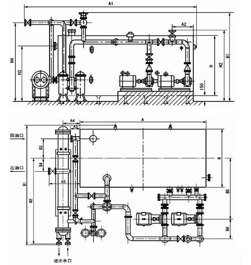
七、外形尺寸
XYZ-6G~125G稀油站外形圖及尺寸表

型 號
|
DN
|
d
|
A
|
B
|
H
|
L
|
L1
|
B1
|
B2
|
B3
|
d1
|
E
|
S
|
N
|
H1
|
H2
|
H3
|
H4
|
H5
|
H6
|
H7
|
XYZ-6G
|
25
|
G1/2
|
700
|
550
|
450
|
1010
|
190
|
255
|
220
|
730
|
G3/4
|
213
|
150
|
0
|
965
|
550
|
268
|
80
|
268
|
580
|
380
|
XYZ-10G
|
XYZ-16G
|
50
|
G1
|
1000
|
900
|
700
|
1505
|
256
|
410
|
363
|
1130
|
G1
|
285
|
175
|
35
|
1310
|
855
|
350
|
130
|
350
|
875
|
580
|
XYZ-25G
|
XYZ-40G
|
50
|
G1 1/4
|
1200
|
1000
|
850
|
1700
|
235
|
470
|
390
|
1230
|
G1 1/4
|
290
|
248
|
60
|
1460
|
990
|
355
|
160
|
355
|
1035
|
740
|
XYZ-63G
|
XYZ-100G
|
80
|
G1 1/2
|
1500
|
1200
|
950
|
2300
|
390
|
560
|
444
|
1430
|
G1 1/4
|
305
|
170
|
100
|
1600
|
978
|
355
|
180
|
375
|
1095
|
820
|
XYZ-125G
|
XYZ-250G~1000G稀油站外形圖及尺寸表
型 號
|
回油
通徑
|
出油
通徑
|
進出水口
|
A
|
B
|
H
|
A1
|
A2
|
A3
|
A4
|
A5
|
XYZ-250G
|
125
|
65
|
65
|
3300
|
1600
|
1200
|
4295
|
442
|
100
|
560
|
945
|
XYZ-400G
|
150
|
80
|
100
|
3600
|
2000
|
1500
|
4655
|
492
|
100
|
572
|
800
|
XYZ-630G
|
200
|
100
|
100
|
4300
|
2600
|
1600
|
5900
|
560
|
170
|
750
|
1445
|
XYZ-1000G
|
250
|
125
|
200
|
5300
|
2600
|
1900
|
7360
|
630
|
235
|
1285
|
2000
|
(續上表)
型 號
|
B1
|
B2
|
B3
|
B4
|
B5
|
B6
|
H1
|
H2
|
H3
|
H4
|
蒸汽
接口
|
XYZ-250G
|
3235
|
2355
|
570
|
364
|
1960
|
300
|
2172
|
1600
|
1050
|
1850
|
G1
|
XYZ-400G
|
3690
|
2650
|
750
|
907
|
2230
|
300
|
2275
|
1750
|
1300
|
1965
|
XYZ-630G
|
4672
|
3017
|
1020
|
320
|
2700
|
390
|
2425
|
2067
|
1400
|
2080
|
XYZ-1000G
|
4803
|
3207
|
1000
|
500
|
2720
|
450
|
2755
|
2285
|
1680
|
2480
|
|